Markedsledende

Programvare for beregning av takstoler, bjelkelag og vegger

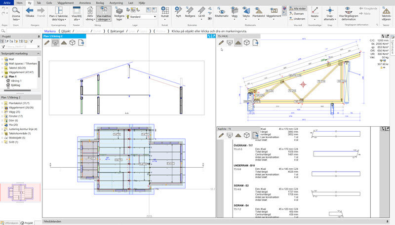
Ved å samle plantegning, 3D, beregning, produksjonsdata og komplett dimensjonering i henhold til Eurokode 5 og aktuelle normer, erstatter Pamir det som tradisjonelt har vært oppdelt i flere ulike programmer. Med en helintegrert programvare, får brukeren en tydelig oversikt over hvordan ulike deler i konstruksjonen samvirker. Det er dessuten bare ett brukergrensesnitt og med ett sett av verktøy å lære seg samt kun en prosjektfil å jobbe med. Med MiTek Pamir tar du plantegningen og produksjonen av spikerplatebaserte konstruksjoner til neste nivå.

Programvaren utvikles av vårt europeiske utviklingsteam i Sverige, Frankrike og England og bygger på 40 år med professjonell og praktisk erfaring fra utallige prosjekt og kundesupport.

Merk at du må ha egen Posi-Joist- eller takstol-produksjon for å benytte programvaren. 

Intelligent takdesign

Beregning

  • Alltid oppdatert med siste Eurokode og nasjonale tillegg.
  • Importer underlag – Pamir støtter import av flere ulike filformat som DXF, DWG og IFC.
  • Intelligent utlegging av takstoler ved hjelp av takflater.
  • Smarte verktøy for å håndtere blant annet snølommer og lastutbredelse.
  • Visuell oversikt av lokale deformasjoner.
  • Omfattende innstillingsmuligheter gir fullstendig tilpasning til brukeren og foretakets preferanser.
Tegn plan, 3D og takstol samtidig

CAD i 2D & 3D

Pamir kjennetegnes av fleksibiliteten hos de intelligente verktøyene som kan skape både enkle og mer avanserte løsninger med et fåtall klikk. Detaljerte konstruksjoner kan defineres som den foretrukne standardløsningen, alt avhengig av rådende forutsetninger og geometri.

  • Dynamiske snittbilder oppdateres ved redigeringer.
  • Kraftfull interaktiv 3D-vy.
  • Enkelt å skape kompliserte takprofiler.
  • Webbasert 3D-viewer tilgjengelig på valgfri enhet og for samtlige interessenter.
  • Kollisjonshåndtering direkte i 3D-vy.

Produksjon

Optimer dine maskiner med styring av sag, presse og laser og generer komplett produksjonsdata i form av:

  • Plukklister
  • Kapplister
  • Produksjonstegninger
  • PLM-tegninger
Raskt og enkelt

Kalkyle

  • Tilpasning av formler for prisberegning.
  • Beregning av materialforbruk og arbeidstid.
  • CO2-regnskap.
  • Automatisk kostnadsoptimerer.
  • Kompatibilitet og integrasjon med Microsoft Excel.
Kraftfullt og detaljert

Spesialkonstruksjoner

Visse konstruksjoner stiller store krav til kompetanse, detaljrikdom og prosjektplanlegging. Pamir tilbyr mange funksjoner hvor avanserte konstruksjoner som f.eks. bruknekter raskt kan skapes i detalj. MiTek Pamir er den ideelle partneren for den erfarne ingeniøren.

  • Intelligente verktøy muliggjør en effektiv arbeidsflyt, også under tidspress.
  • Grensesnitt for importere avanserte konstruksjoner for videre bearbeiding er enkle å forstå og benytte.
  • Spesielle funksjoner for plassering, utbredelse og navnsetting av laster sparer tid og penger.
40 års erfaring

Fri programsupport

Når du begynner å bruke Pamir, tilbyr vi et kort grunnkurs for å hjelpe deg i gang. Etter avsluttet kurs finnes vårt kontor på Ridabu i Hamar tilgjengelig for videre support når du trenger det. Med vår omfattende erfaring innen området med konstruktører som benytter Pamir daglig så finnes vi i MiTek her for å hjelpe deg.